The biggest struggle as creators or architects is to translate your imagination into understandable ideas. Some are very good at verbally displaying one’s thoughts and another making them clear. Professionals often use drawing by hand as a first step to iterate, and to let creativity flow easily. For digital ilustrations there are endless technologies being crafted. In this new age of digital world, it enables the human to complete tasks faster and create things that by hand would be nearly impossible to do at such rate, and with such computational precision.
Course: Visual Intelligence


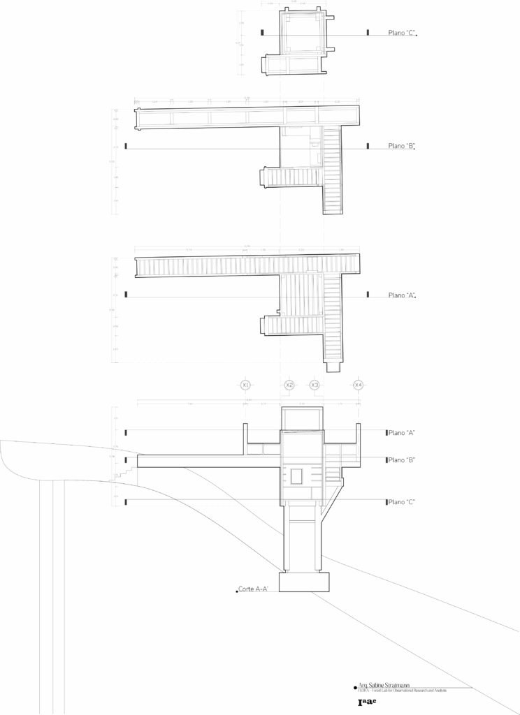
The concept for the 2D drawing starts at the base with a section, cutting through the middle of the plan, looking North. Afterward having plan views at different levels. Plan A: looking at the multiple longitudinal boards of the bridges. Then plan B: reveals the inner frame of the longest primary bridge, this system then repeats itself in the next two passageways. Finally the last plan shows the top of the foundation pillars that were used.
The axonometric drawing is based on the theory regarding the South-Eastern facade being viewed as a whole. Lopping the sections of the bridges while incorportating a better scenery of the top canopy and the foundation stanchions.

Technical: Used the Flora 3D model, in Rhino, passed on to AutoCad to facilitate the work progress in a 2D illustration, making everything connect and cleaning the drawing. Finally finessing the linework details in Illustrator.
Lineweights used (Illustrator):
- LEVEL 1 – Dimensions and details: 0.05pt.
- LEVEL 2 – Base and Topographic: 0.2pt.
- LEVEL 3 – Contour: 0.5pt.
Every designer finds their personal methods on how to orchestrate their thoughts to show others their creations. The beauty and difficulty is within the ultimate “How to? and what to comunicate?”.
