Case study of a 3D printed project

Site Organization

The site plan was developed to support a continuous and efficient design-to-production workflow, integrating material preparation, digital control, and on-site fabrication into a single coordinated system. The spatial organization follows a clear operational sequence, from raw material handling to final deposition, reducing unnecessary movement, interruptions, and setup time.

Earth processing zones—including sifting, mixing, and temporary storage—are strategically positioned to minimise transport distances while maintaining separation between clean and wet operations. From the mixing station, material is pumped directly toward the printing area, enabling a steady and controlled supply during continuous extrusion and supporting consistent material quality throughout the printing process.

The printing zone was planned in close coordination with crane reach, rotation, and repositioning logic. Crane placement was carefully calibrated to allow full coverage of the printed volume through controlled movements, while avoiding interference with the existing HELIA wall. This setup enables the complete enclosure to be printed with minimal repositioning, improving accuracy, reducing downtime, and optimising overall production time.

Environmental protection strategies were integrated into the site layout to address the sensitivity of earthen material during its wet state. Dedicated tarp support posts were positioned around the printing area to allow rapid deployment of protective covers in the event of rain, safeguarding freshly printed layers and enabling continuity of production despite changing weather conditions.

The computer station and G-code control point were located to maintain direct visual oversight of both the printing process and crane operation. This positioning allows real-time monitoring, rapid intervention when required, and precise coordination between digital instructions and physical execution, ensuring alignment between computational planning and on-site fabrication.

Overall, the site planning framework integrates material flow, machine constraints, environmental protection, and digital control into a seamless production system. The resulting layout demonstrates how architectural design can extend beyond form and material into the orchestration of efficient, accurate, and resilient construction workflows.

Foundation

1.Layout drawing First the exact position of the walls was marked with coloured spray.

2. Excavation The top soil was dug to the side, while the rest, all the way to the bedrock was put to the side to use for the walls

3. Foundation
Marking and placing Gabions. Filling remaining cavities with gravel. Compacting the earth. Marking the wire connections.

The fondation was finished right before christmas. 

Plinth

Wall

Layout Distribution

The IAAC prototype represents the consolidated outcome of this year’s research, translating experimental findings into a single, spatially resolved architectural artefact. Conceived as a small-scale residential unit, the prototype integrates a private room, an attached living space, and a compact kitchenette, organised to function as a continuous yet clearly articulated interior volume.

Building upon the Helia Wall prototype developed in the previous year, this iteration shifts focus from isolated wall elements toward the enclosure of a complete volume. The design prioritises the assembly of multiple, discretised 3D-printed earthen walls, each conceived as an autonomous component while collectively forming a coherent architectural system. This strategy allows individual walls to embody specific research outputs—such as variations in geometry, toolpath modulation, opening size, and structural articulation—while remaining spatially and functionally integrated.

Openings are deliberately differentiated in scale and placement according to orientation and programmatic needs. Larger apertures are introduced in the living areas to enhance daylight access and spatial permeability, while smaller, more controlled openings serve private or service spaces, balancing enclosure, privacy, and environmental performance. The layout therefore operates both as a domestic plan and as a testbed for evaluating how discrete printed wall systems, informed by material behaviour and fabrication logic, can be composed into a complete inhabitable structure.

As a whole, the prototype functions simultaneously as a habitable space, a demonstrator of additive manufacturing with earth, and a synthesis of the year’s research—bringing together spatial design, fabrication constraints, and performance-driven differentiation within a single built artefact.

Roof Structure

The roof system is conceived as an entirely timber-based assembly, designed to remain lightweight while providing structural stability and climatic protection for the earthen enclosure. A network of wooden beams forms the primary load-bearing structure, spanning over the printed walls and allowing loads to be distributed efficiently without over-stressing the earthen material, particularly during early drying stages.

At the interface between the roof and the walls, a continuous timber distribution plate is introduced. This element plays a critical role in mediating between the geometric tolerances of the 3D-printed earth and the precision required for timber construction. It ensures even load transfer, accommodates minor surface irregularities, and provides a clear, repeatable connection strategy between enclosure and roof.

To address wind uplift and lateral forces, the roof assembly is stabilised using steel tension cables that anchor the distribution plate directly to the foundation system. These cables are fixed to the gabions at the plinth level and are guided through dedicated cavities within the earthen walls. The cavities were intentionally designed as part of the wall geometry, allowing the anchoring system to be fully integrated within the printed structure rather than applied as an external or post-added solution.

Through this approach, the roof is not treated as an isolated element but as part of a continuous structural system, linking foundation, wall geometry, and enclosure. The resulting assembly demonstrates how lightweight timber construction can be effectively combined with 3D-printed earthen walls while maintaining structural coherence, adaptability, and fabrication-aware detailing.

Research topics 

  1. Wet State Wall Stability

Inserting vertical wooden rods during 3D earthen printing boosts wet state stability, enabling 50% taller builds. Vertical reinforcements proved more effective than diagonal ones, and future work will explore stronger materials and automation.

  1. Ventilation for Wet State Drying

Exploring solutions to slow drying in 3D-printed earthen walls, the research demonstrates that vertical openings significantly improve airflow. Triple aligned vents proved most effective, reducing internal moisture by up to 7% in one week. Future work will focus on automating and miniaturizing these ventilation features.

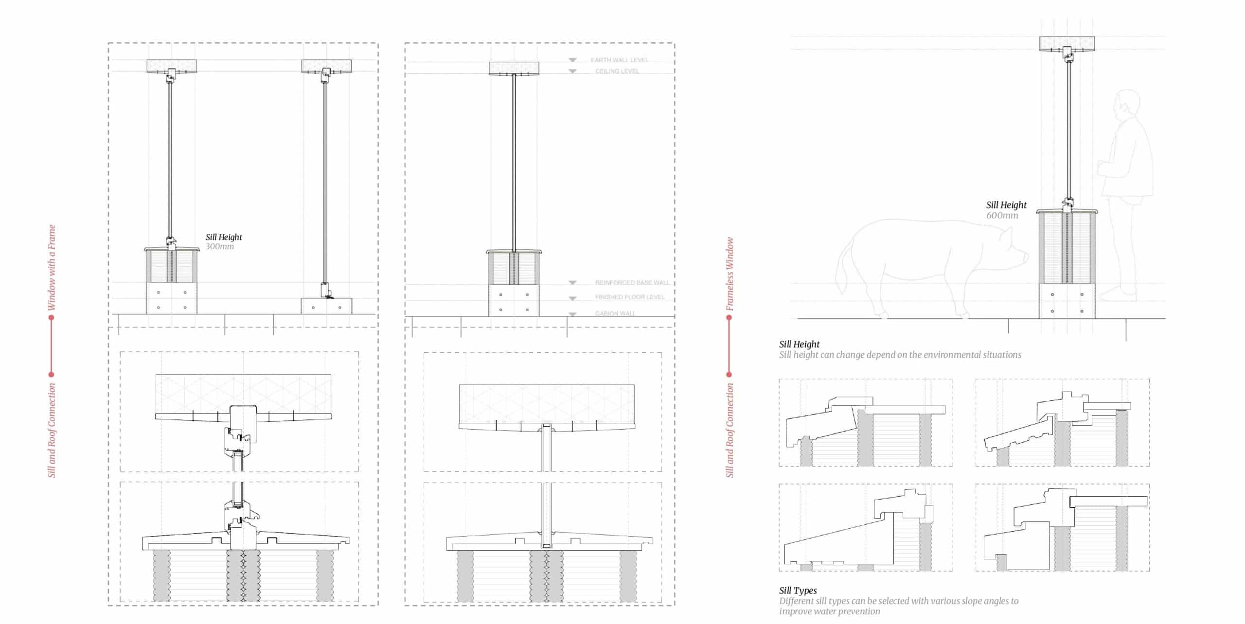
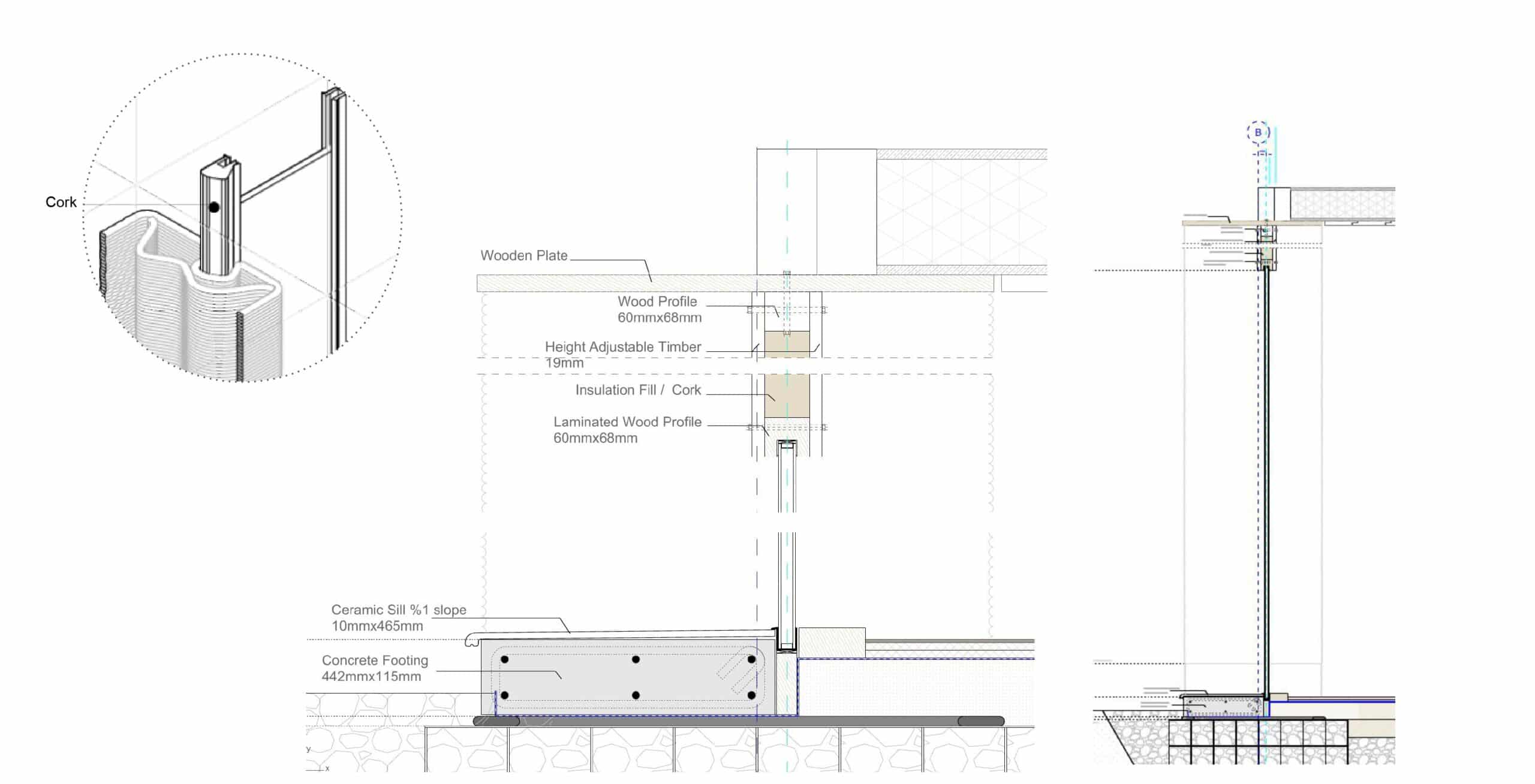
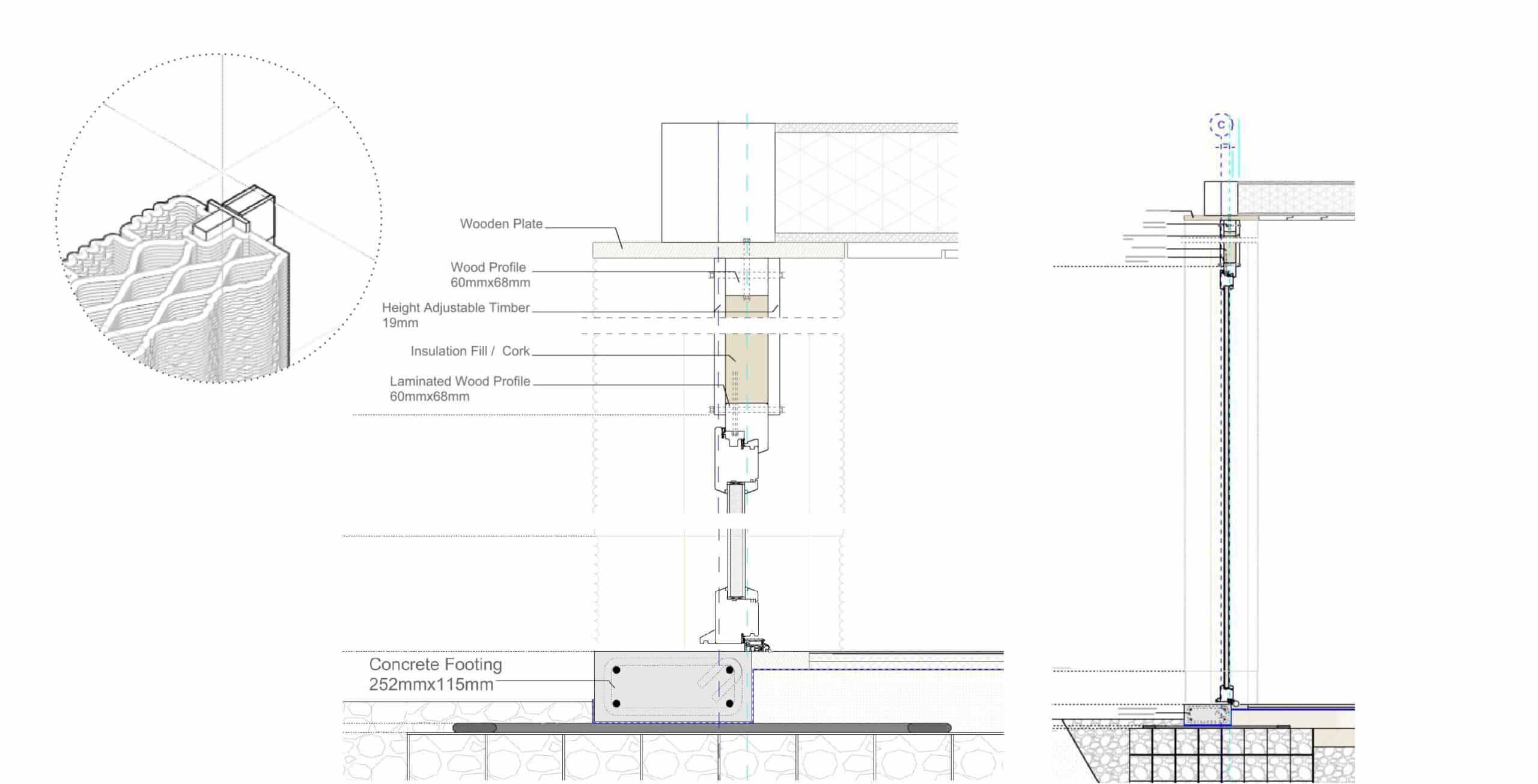
  1. Windows & Doors

This study proposes a flexible, post-print joinery system for integrating standard windows into 3D-printed earthen walls. Using internal cavities and a wooden pre-frame filled with sand or cork, it ensures structural stability, airtightness, and easy future replacement—bridging traditional components with earthen material behavior.

  1. Performative Walls Textures

Focusing on structural improvement, the study demonstrates that adding surface textures to 3D-printed earthen walls enhances wet-state stability, enabling up to 50% taller builds. By oscillating the toolpath, the wall’s stiffness increases, reducing buckling risk. Despite higher material use and print time, the textures serve as functional micro-structures with added benefits for drying and acoustics.

Window and Doors